top of page

Rose Avenue Residence, Scheme 3

 

Mill Valley, California

​

For

lower (garage) level floor plan

second (bedrooms and second unit) level floor plan

third (bedroom and master bedroom) level floor plan

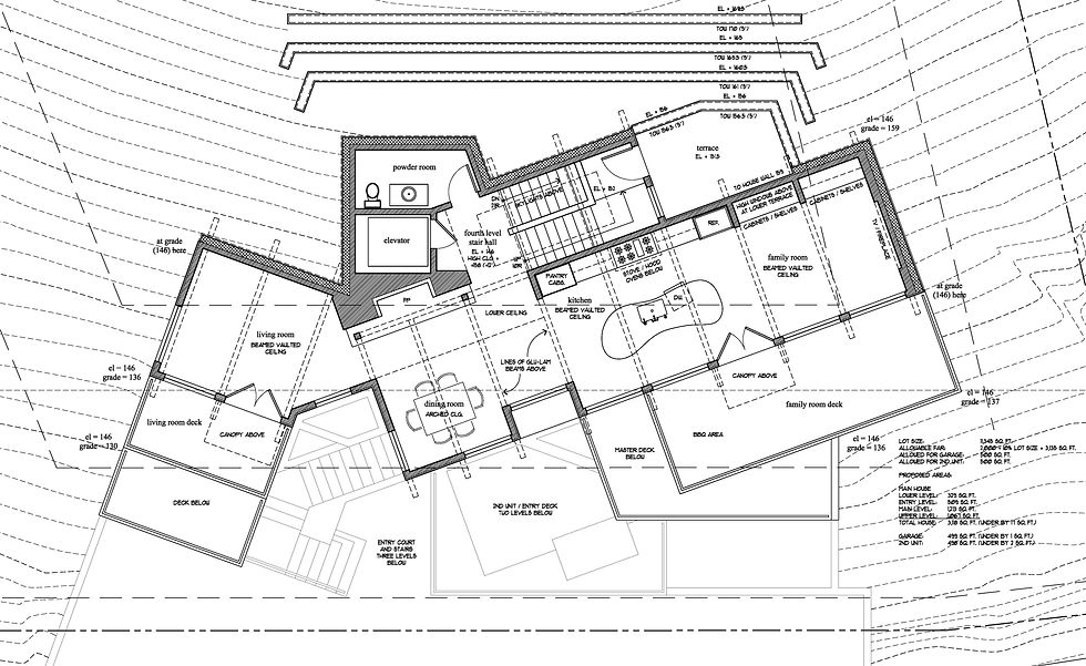
upper (living) level floor plan

roof plan

bottom of page